Deze royale vrijstaande woning is gelegen aan de rand van Poortugaal, tegen het 'Valckesteynse bos' aan. Heerlijk rustig in een mooie groene omgeving en toch dichtbij alle voorzieningen die je nodig hebt.
Op zoek naar veel ruimte? Dan is dit je nieuwe huis! Deze woning beschikt over een voormalige praktijkruimte op de begane grond met een eigen entree. Ideaal geschikt voor dubbele bewoning, mantelzorg, opgroeiende kinderen die een 'eigen plekje' zoeken of een werk-/praktijkruimte aan huis.
In de tuin rondom is altijd een fijn plekje te vinden! Aan de voorzijde 2 eigen privé parkeerplaatsen en voldoende openbare parkeermogelijkheid bij de woning.
Op circa 10 minuten loopafstand van de dorpskern van Poortugaal met complete basisvoorzieningen en binnen 5 minuten is de basisschool en metrostation Poortugaal lopend te bereiken. Met de metro sta je binnen 25 minuten in het centrum van Rotterdam. Met de auto zit je in 5-10 minuten op snelweg A15 (en A4/A29).
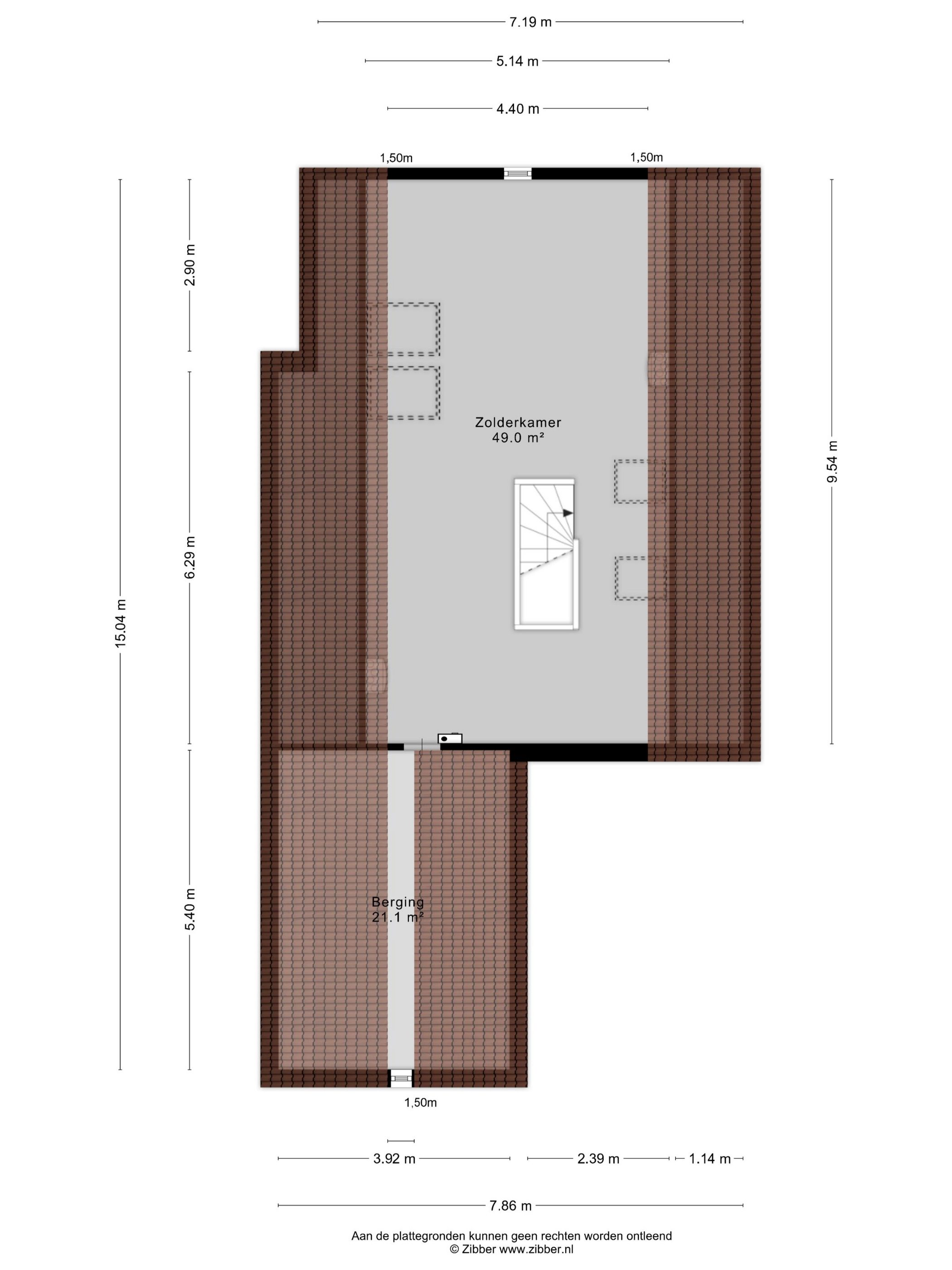
Op de plattegronden zijn de riante afmetingen en de indeling goed zichtbaar.
Type woning: vrijstaand woonhuis
Berging: houten berging met overkapping in de achtertuin, totaal circa 38 m²
Parkeren: 2 plaatsen op eigen erf
Grond: 1.010 m² eigen grond
Woonoppervlakte: 327 m²
Inhoud: circa 1.210 m3
Bouwjaar: 2001
Aantal kamers: 8 waarvan 5 slaapkamers
Ligging tuin: tuin rondom!
Energielabel: A+
Oplevering: in onderling overleg
Begane grond (woning):
Via de voortuin, met mogelijkheid parkeren eigen erf, toegang tot de woning. Entree ruime hal / gang met open trapopgang naar de eerste verdieping, meterkast en toilet met handwasbakje. Toegang tot de woonkamer.
De woonkamer (van bijna 37 m²) is gelegen aan de rechterzijde van de woning, over de volledige diepte en biedt een fijne lichtinval door de vele raampartijen. Middels openslaande deuren aan de zijkant en aan de achterkant heb je toegang tot de tuin. De woonkamer beschikt over een vaste kast. Aansluitend de sem-open keuken met een inrichting geplaatst in U-opstelling. De keuken is voorzien van complete inbouwapparatuur zoals 5-pits gaskookplaat, afzuigkap, oven, magnetron en vaatwasmachine. De spoelbak bevindt zich onder het raam met een heerlijk zicht op de achtertuin.
De hal, woonkamer en keuken zijn voorzien van een tegelvloer.
Aansluitend aan de keuken, de bijkeuken die op zijn beurt toegang geeft tot de tuin en de voormalige praktijkruimte. De bijkeuken is voorzien van een keukenblok met veel kastruimte en de cv-combiketel HR (Atag, 2019).
Begane grond (voormalige praktijkruimte):
Entree aan de linkerzijde van de woning. Hal met toegang tot inpandige berging / wasruimte. Centrale gang / hobbyruimte (in 2 gedeeltes) met toegang tot 2 kamers met kitchenette en separaat toilet met handwasbakje. Toegang tot de bijkeuken van de woning. Beide kamers zijn circa 20 m² groot!
1e Verdieping:
Overloop met centraal geplaatste vaste trapopgang naar de 2e verdieping, toegang tot de 5 slaapkamers, de badkamer en separaat toilet voorzien van handwasbakje.
Slaapkamer 1 is gelegen aan de voorzijde van de woning, zeer royaal van opzet, bijna 30 m² groot! Als extra voorzien van 2 dakramen.
Slaapkamer 2 is gelegen aan de rechterachterzijde van de woning, 23 m² groot.
Slaapkamer 3 is gelegen aan de linkerachterzijde van de woning, 17,1 m² groot.
Slaapkamer 4 is gelegen aan de linkerzijde van de woning, 16,6 m² groot, voorzien van dakkapel.
Slaapkamer 5 is eveneens gelegen aan de linkerzijde van de woning, 15,1 m² groot, voorzien van dakkapel.
De zeer ruime badkamer van circa 13 m² is voorzien van betegeling tot aan het plafond, een ligbad, douchecabine, dubbele wastafel, design radiator en dakraam.
2e Verdieping:
Via een vaste trap bereikbaar. Zeer royale zolderkamer (open ruimte) met 2 dakramen aan de linker- en 2 dakramen aan de rechterzijde. Het is zeer eenvoudig mogelijk om ook hier 1 of 2 slaapkamers extra te realiseren. Er zijn 2 stuks warmteterugwinunits (balansventilatie) geïnstalleerd. Toegang tot een extra bergzolder bovenop de grote slaapkamer.
Berging / tuin:
De heerlijke tuin is voorzien van volwassen groen en meerdere terrassen! Altijd een plekje in de zon of schaduw te vinden. De tuin heeft een rustgevende ligging aan het Valckesteynse bos en biedt een vrij uitzicht. Het bos is eenvoudig bereikbaar via een wandelpad, heerlijk voor een ommetje met de hond of gewoon om even lekker een relaxte ochtendwandeling te maken.
Er is een houten berging aanwezig van 6.0 x 3.0 meter met overkapping van 6.0 x 3.25 meter. De berging is bereikbaar vanuit de overkapping maar ook via dubbele deuren vanaf de entree tuin. Ideaal voor bijvoorbeeld een motorfiets of scooter!
Algemeen:
12 stuks zonnepanelen x 400 Wp voorzien van optimizers (2021).
Houtskeletbouw, volledig geïsoleerd. Volledig voorzien van hardhouten kozijnen met isolatieglas.
Een heerlijk ruim huis met veel mogelijkheden! Op een mooi en rustig plekje maar toch centraal ten opzichte van alle voorzieningen!
Persoonlijke noot van de huidige eigenaar:
Met weemoed verkopen wij ons paradijsje. We hebben er jaren met heel veel plezier gewoond. Toen de kinderen klein waren, konden ze heerlijk spelen in de beschutte tuin. Later vermaakten ze zich in het bos, bij het water en de mooie speelplekjes in de wijk. Zo veel opties om samen te spelen met vriendjes.
We hebben er ook heel veel feestjes gegeven. De pizzaoven stond al klaar. Met de metro op loopafstand ben je in 25 minuten in Rotterdam voor de middelbare school, musea en theater.
We hopen dat de nieuwe bewoners weer vele jaren zullen genieten van dit mooie plekje.
Hoewel deze verkoop tekst (met bijbehorende tekeningen) met uiterste zorg is samengesteld, kan zij onjuistheden bevatten. Aan deze onjuistheden kunnen geen rechten worden ontleend.